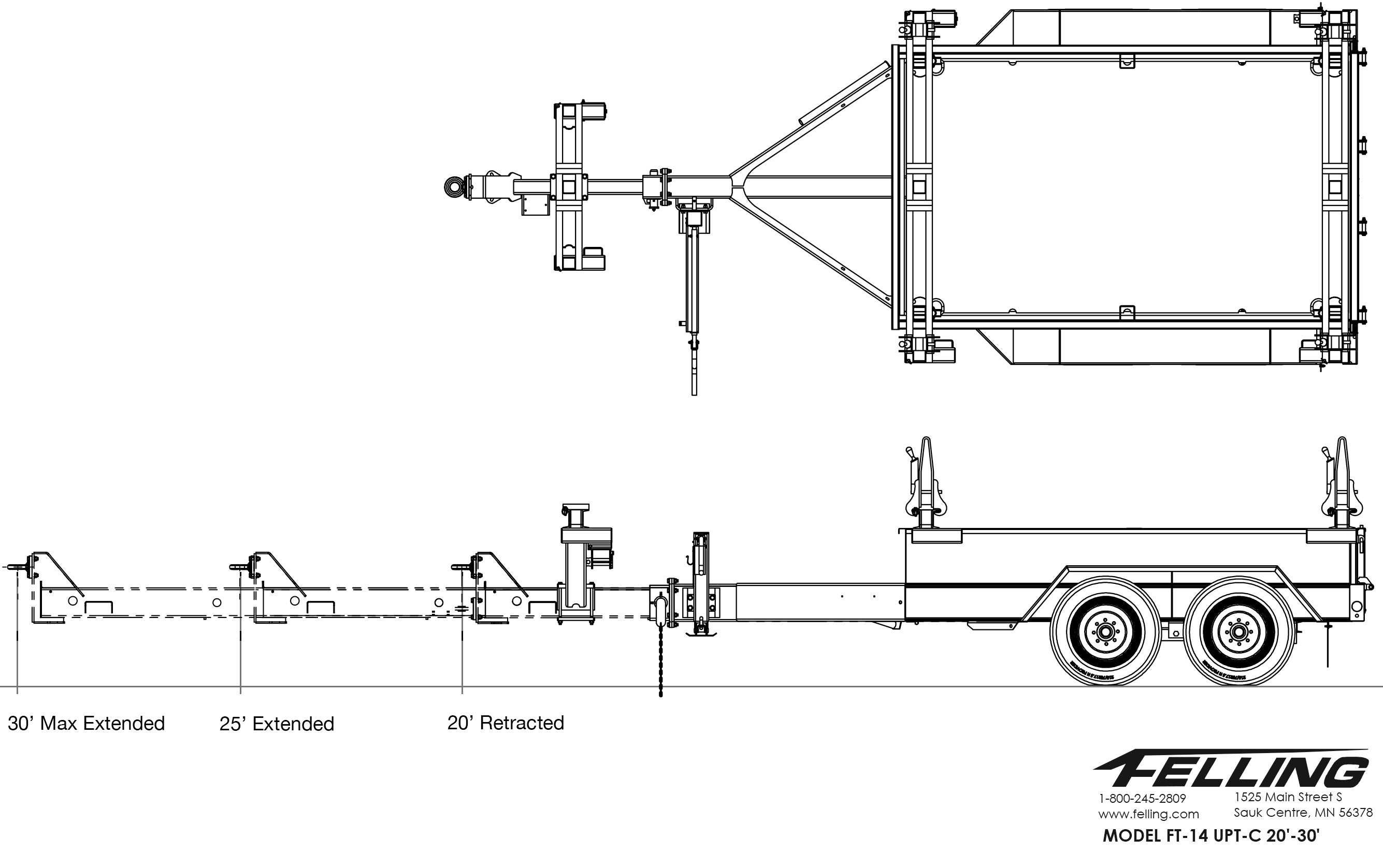
The Felling Trailers Utility Pole Cargo (UPT-C) trailer line offers four models with GVWRs ranging from 13,800 pounds to 23,000 pounds.
All models are standard with electric FSA (forward self-adjusting) brakes on all axles with an air brake option available on FT-20 UPT-C. Lengths Retracted/Extended & Cargo Box Lengths Available lengths (retracted/extended) and cargo box lengths include: 20-foot/30-foot length with 10-foot bed (standard on all models); 24-foot/40-foot length with 12-foot bed (available on all models); and 29-foot/46-foot length with 14-foot bed (available on FT-20 UPT-C only).
Equipped with a 2-inch cold-rolled steel, positive locking adjustment pin and designed with a notched flange welded on the pin, the flange notches have to pass through two tabs welded 90 degrees from each other, assuring a positive locked position. The 2-inch positive locking adjustment pin is attached to the trailer with a chain to prevent loss.
